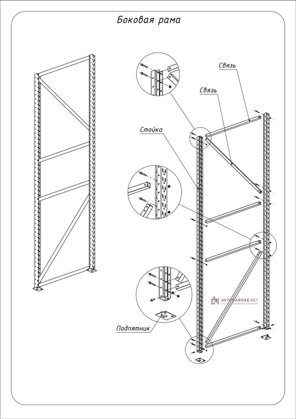
Боковая рама напольного стеллажа состоит из металлических оцинкованных вертикальных стоек, соединенных диагональными и горизонтальными связями. Для устойчивости вертикальные стойки комплектуются подпятниками. Выберите в свойствах вариантов необходимую длину, глубину, боковой рамы, цвет (оцинкованный или черный муар). Для сборки используйте схемы в разделе "Инструкции" (в зависимости от высоты боковой рамы, в схемах показано расположение и размер горизонтальных и диагональных связей, как их закреплять между вертикальными стойками). Или закажите у нас услугу монтажа.
Для одной секции стеллажа вам необходимо заказать 2 боковые рамы, для продления секции + 1 боковая рама (на стыке стеллажей используется одна боковая рама). Схемы по сборке стеллажа во вкладке "Инструкция".
Боковые рамы соединяются между собой горизонтальными балками с помощью зацепов. Если вам необходимо поменять высоту ряда полок, просто переустановите горизонтальные балки. На балки устанавливаются полочные панели, полки для колес, выдвижные ящики. Полный каталог со всеми компонентами напольных стеллажей.
Размеры:
Варианты длины (глубина стеллажа) 400, 500, 600, 700, 800, 1000 мм.
Варианты высоты: 1500, 2000, 2500, 3000 мм.
Комплектация:
Обратите внимание, что высота боковых рам может быть разной в соседних секциях.
Цвет: оцинкованный, черный муар.
Материал:


Инструкция по сборке боковой рамы и напольного стеллажа в целом во вкладке "Инструкция".
В зависимости от высоты и глубины стеллажа, используется разное количество, разный размер и разное расположение вертикальных стоек и связей. При сборке пользуйтесь инструкцией:




Общая схема сборки напольного стеллажа.




Ленинская Слобода, 9, под. 4
Ежедневно: c 9-30 до 20-30